top of page

PRODAJU SE
dva stana u centru Zagreba, izvrsne kvadrature, za stanovanje ili najam, i po izuzetno povoljnoj cijeni.
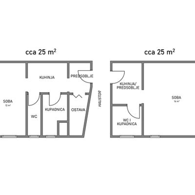
2 x 25 m2
Dvije garsonijere u renoviranoj zgradi, jedna preko puta druge, odmah useljive.
Svaki stan ima kuhinju s blagovaonicom i dnevnim boravkom, spavaću sobu te WC i kupaonicu.
USELJIVI
Oba stana priključena su na gradski plin i centralno grijanje, i imaju sve potrebne priključke za stanovanje.
DODATAK SU
pripadajuća šupa te dvorište koje je moguće slobodno koristiti, npr. za sušenje rublja roštiljanje i sl.

bottom of page











